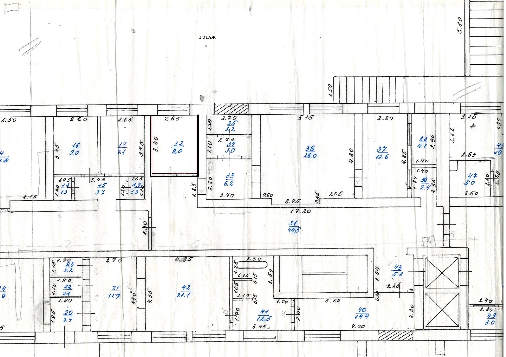
Нежилое помещение общей пл.9,0 кв.м., обозначенное на поэтажном плане под №32 на 1 этаже в нежилом здании с кадастровым №42:05:0110001:4015. Разрешенное использование размещение офиса. Срок аренды 364 дня
Прием заявок окончен!
Дата и время проведения аукциона:08.05.2026 в 11:00 час.
Заявки принимаются до: 04.05.2026
Адрес: Кемеровская область - Кузбасс, Крапивинский район, пгт Зеленогорский, ул. Центральная, д.31
Площадь объекта недвижимости (м2): 9
Годовой платеж (руб.): 43 308 (аукцион в электронной форме)
Срок действия договора: 364 дня
Сумма задатка (руб.): 8 661,60
Шаг аукциона (руб.): 2 165,40
Балансодержатель объекта: ГБУЗ «Крапивинская районная больница»
В результаты: yes
Итоговый размер годовой платы (руб.): 43 308
Победитель аукциона/единственный заявитель: КУЗБАССКИЙ ФИЛИАЛ ООО "АЛЬФАСТРАХОВАНИЕ - ОМС"

Аукционная документация:

Формы заявок и типовые договоры купли-продажи и аренды имущества размещены в разделе "Аукционная документация".
Адрес электронной площадки, на которой принимаются заявки и проводятся электронные торги: sale.zakazrf.ru.

По вопросам получения дополнительной информации о работе электронной площадки обращаться в Службу технической поддержки тел.8(843) 212-24-25, sale@mail.zakazrf.ru.

В отношении неэлектронных торгов, заявки принимаются по рабочим дням по адресу: г.Кемерово, ул.Дарвина, д.4 (специализированый ящик для приема в фойе первого этажа) либо почтовым отправлением.

Одно лицо имеет право подать только одну заявку на каждый лот.

Требования к заявителям, а также перечень необходимых для участия в торгах документов указаны в информационном сообщении.

Сумма задатка для участия в электронных торгах перечисляется (вносится) непосредственно претендентом в течение срока приема заявок единым платежом на счет Претендента, открытый при регистрации на электронной площадке: р/с 40602810900028010693, получатель АО "АГЗРТ", банк ПАО "АК БАРС" БАНК г.Казань, БИК 049205805, к/с 30101810000000000805, ИНН 1655391893, КПП 165501001. Назначение платежа: Пополнение счета по площадке sale.zakazrf.ru, счет № __._____._____-VA. НДС не облагается.

Возврат денежных средств осуществляется путем их разблокировки в личном кабинете участника торгов.

В отношении неэлектронных торгов, реквизиты для перечисления задатка указаны в соответствующем информационном сообщении.

Внесенный победителем задаток засчитывается в счет оплаты приобретаемого имущества.

При уклонении или отказе победителя аукциона (единственного участника) от заключения в установленный срок договора, он утрачивает право на заключение указанного договора и задаток ему не возвращается.

С информацией о ходе проведения процедур торгов претендентам можно ознакомиться по телефонам ‎(3842) 75-32-52, 75-04-66, а также на сайте учреждения.

К списку торгов